Понеділок, 16 березня

Журналісти «Схем» показали палац Медведчука із шубосховищем, церквою та секретною кімнатою

Голова політради партії «Опозиційна платформа — За життя» народний депутат Віктор Медведчук після введення проти нього санкцій продовжував капітальну реконструкцію свого маєтку у Пущі-Водиці. Журналісти також отримали креслення палацу. Про це йдеться у розслідуванні програми «Схеми».

Джерело: ZAHID.NET.

Журналісти вперше зафіксували на відео масштабні ремонтні роботи у травні 2021 року, коли проти Медведчука вже ввели санкції, які передбачали зокрема «блокування активів та обмеження торговельних операцій».

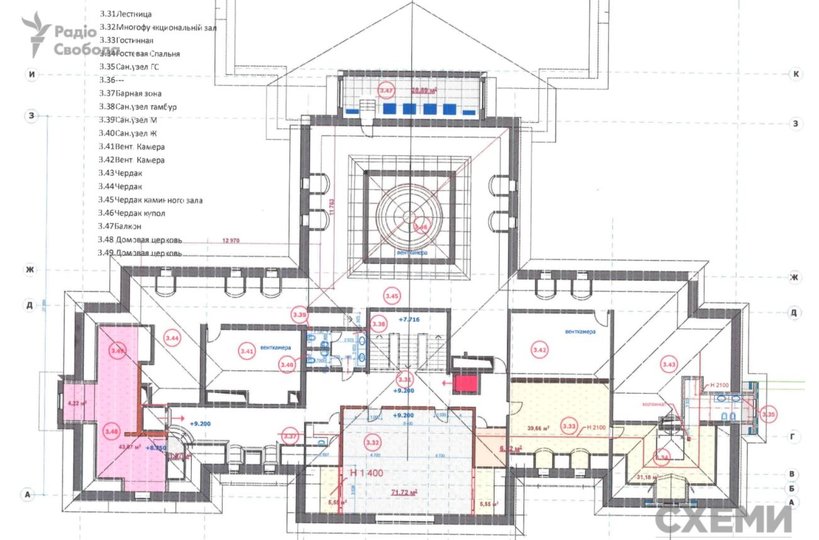
Відео, зняте журналістами вже у листопаді, зафіксувало суттєвий прогрес у ремонтних роботах. Додатково «Схеми» отримали у своє розпорядження креслення – плани повної реконструкції та перепланування палацу Медведчука площею понад дві тисячі квадратних метрів.

Згідно з цими документами, приміщення у маєтку відведені, зокрема, під шубосховище, сервізну, склади картин, килимів та суконь, секретну кімнату тощо. Відповідно до документів, маєток складається з чотирьох поверхів (один цокольний), має два ліфти – службовий та для мешканців, а також більше сотні приміщень різного призначення.

Відео «Схеми»

На цокольному поверсі – кімната для покоївок та чоловічий і жіночий житлові блоки. Тут же – складські приміщення: для шуб, для картин, для килимів, для валіз, для скатертин, окремий гардероб для суконь. Також є зона відпочинку: гідромасажна, масажна, сольова кімната, зона гідромасажних ванн з приміткою «узгоджується із замовником» і технічна зона. Є окрема кімната площею 28 квадратних метрів, підписана як «склад ялинкових іграшок».

Журналісти повідомляють, що на першому поверсі розташована зала на 95 кв. м з ліфтом, їдальня, сходи у винний льох, кухня та сервізна; для тих, хто обслуговує маєток, існує окремий вхід, рецепція, кімната охорони та службовий ліфт. Також тут розташований кабінет Оксани Марченко, кімнати та санвузли з абревіатурою ГБ (імовірно, гостьовий блок) і дворівневий кедровий гардероб на 30 кв.м. За інформацією журналістів, кабінет Віктора Медведчука займає 45 кв.м, у ньому є «секретна кімната» на 11 кв.м. Також на першому поверсі розташовані камінний зал, перукарня, ще одна масажна, хамам, кімната відпочинку та 18-метровий басейн.

Горішній поверх – це домашня капличка позначена на кресленнях як домова церква площею 43 квадрати. Церква межує із барною зоною.

Журналістам не вдалося встановити, у який спосіб відбувалася оплата за проведення ремонтних робіт будинку, які продовжувалися і під час дії санкцій відносно Медведчука і Марченко. Медведчук на запит журналістів не відповів.

Цікаво, що у березні 2021 року після введення санкцій РНБО дружина політика Оксана Марченко публічно розповідала, що їхнє подружжя живе «просто і невибагливо».

«Мені хочеться розповісти усьому світу, яка ми проста класна родина. Ми невибагливі. Хто нас знає – у нас все просто», – заявляла дружина Віктора Медведчука.

Справа Медведчука-Козака

2 лютого 2021 року президент України Володимир Зеленський ввів у дію рішення РНБО про санкції щодо телеканалів з орбіти кума президента Росії Володимира Путіна, народного депутата від ОПЗЖ Віктора Медведчука. Однак фактично ці телеканали належать соратнику Медведчука, львів’янину Тарасові Козаку, який також є нардепом від ОПЗЖ.

2 листопада Печерський райсуд Києва обрав Віктору Медведчуку запобіжний захід у вигляді особистого зобов’язання до 31 грудня. Йому заборонили виїжджати за межі Києва та області без спеціального дозволу.

Слідство встановило, що Віктор Медведчук та Тарас Козак передали російській стороні морське газове родовище «Глибока» у Чорному морі за 75 км від Феодосії, вартість запасів у якому оцінюється у 38 млрд грн. Крім того, у 2020 році Віктор Медведчук через Тараса Козака передав Росії інформацію про розташування прихованого підрозділу Збройних сил України.

Нову підозру – про державну зраду та сприяння діяльності терористичної організації – Медведчуку оголосили 8 жовтня. За даними слідства, він схиляв керівництво України до постачання палива із так званих «ЛНР» та «ДНР» і сплати коштів безпосередньо керівникам терористичних організацій. Так, протягом 2015 року за постачання вугілля та для сприяння діяльності бойовикам, перерахували, перевели у готівку та розподілили на їх користь не менше 200 млн грн, не рахуючи сплаченої готівки, із запланованих більше ніж 3,16 млрд грн.

Новини від "То є Львів" в Telegram. Підписуйтесь на наш канал https://t.me/inlvivinua.